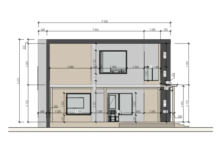
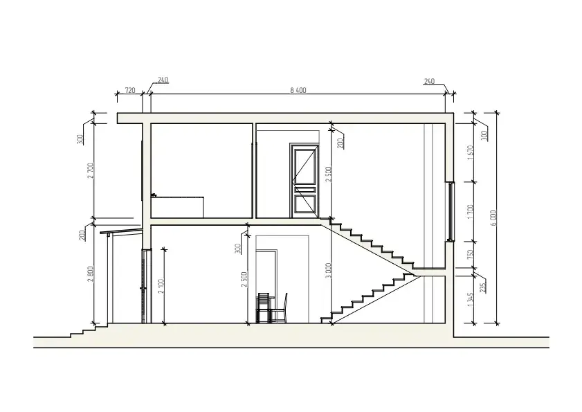
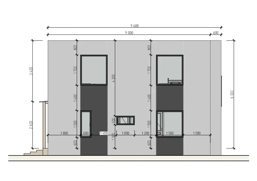
Хайтек 140,29 м² — просторный и выразительный дом, воплощающий идею современного минимализма и технологичного подхода к архитектуре. Чёткие линии, панорамное остекление, контрастные фасады и современные материалы создают эффектный внешний облик.
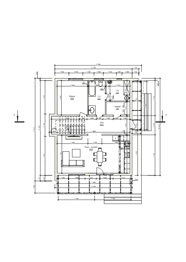
Холл 10,73 кв.м
Гардероб 3,56 кв.м
Т/П 5,56 кв.м
Кабинет 12,03 кв.м
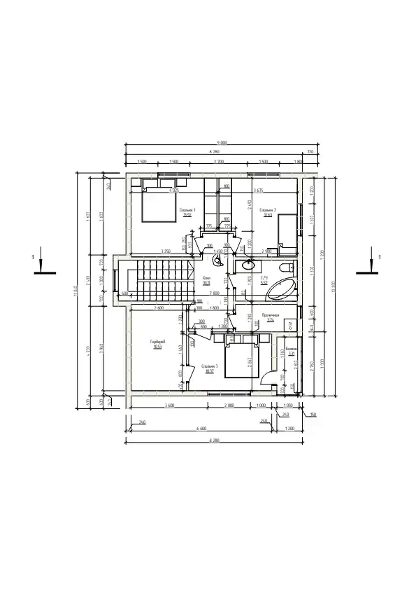
Спальня 2 13,92 кв.м
Спальня 12,63 кв.м
С/У 6,64 кв.м
С/У спальня 5,57 кв.м
Прачечная 3,74 кв.м
Кухня гостиная 31,59 кв.м
Спальня 10,37 кв.м
Гардероб 10,53 кв.м
Холл 10,11 кв.м
Балкон 3,31 кв.м
Общий 140,29 кв.м
Холл 10,73 кв.м
Гардероб 3,56 кв.м
Т/П 5,56 кв.м
Кабинет 12,03 кв.м
Спальня 2 13,92 кв.м
Спальня 12,63 кв.м
С/У 6,64 кв.м
С/У спальня 5,57 кв.м
Прачечная 3,74 кв.м
Кухня гостиная 31,59 кв.м
Спальня 10,37 кв.м
Гардероб 10,53 кв.м
Холл 10,11 кв.м
Балкон 3,31 кв.м
Общий 140,29 кв.м
